Barhaus
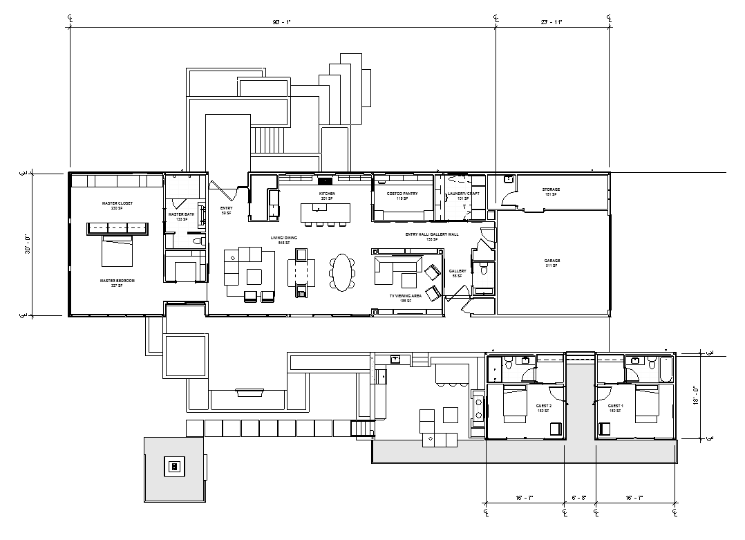
While at HK Architects, Petra worked on the Schematic Design and Design Development of Barhaus, helping organize the house on a disciplined grid and shape its overall flow. She focused on moments of alignment and sequence, including her favorite small moment: an alignment from the gallery hall through to the laundry/craft room, tied to the skylight rhythm above, a generous pivot door, and a large front facing window to the garden. She is also quite proud of the front stair and rear patio which were carefully designed to avoid the need for handrails.
Project Type
Residential New Construction
Services (Petra)
Schematic Design thru Design Development
Location
Elder Mtn. Tennessee
Photography
161 Photography
Kitchen flow options.
Rethinking the exterior patio and guest suite desks.
Petra standing in the gallery.